平屋の間取りは家事動線がカギ|横の動きを短縮する工夫と施工事例でわかる快適な暮らし

階段の上り下りがなくワンフロアで生活が完結する平屋は、家事動線が良い住まいとして人気を集めています。
特に共働きや子育て世帯にとって、毎日の家事を効率よくこなせる平屋は魅力的な選択肢です。
しかし、平屋はワンフロアの横移動が長くなるため、よく考えずに間取りをつくると効率の悪い家事動線で暮らしにくくなってしまうケースもあります。
そこで本記事では、茨城県のハウスメーカー「A-1 home」が、平屋における家事動線の考え方や工夫、実際の施工事例をご紹介します。
家事ラクで暮らしやすい平屋を実現したい方は、ぜひ参考にしてください。
Contents
家事動線とは?平屋は「横の動き」を意識した間取り設計が大切

家事動線とは、料理・洗濯・掃除といった日常の家事を行う際の移動経路を線で表したものです。
動線がスムーズであればあるほど家事の効率が上がり、時間や体力の負担を減らすことができます。
平屋は階段がなく上下移動がゼロになるため、家事動線の面で大きなメリットがあります。
例えば、2階建てのように洗濯物を持って階段を上り下りする負担がなく、効率的な家事動線をつくることが可能です。
一方で、平屋はワンフロアにすべての部屋を配置するため、建物が横に広がりやすいという特徴があります。
洗濯機と物干し場、キッチンと洗面所など、家事に関する間取りをバラバラに配置してしまうと横の動きが増えてしまうリスクがあるのです。
平屋の間取り設計では、家事動線に注目して横の動きをいかに短縮するかが重要なポイントになります。
キッチンを中心に水回りをまとめたり、収納を動線上に配置したりといった工夫が、家事ラクな暮らしを実現するカギとなります。
次の章で、効率の良い家事動線を実現した平屋の間取り事例を見ていきましょう。
家事動線にこだわった平屋の間取り事例
「A-1 home」が手がけた、家事動線にこだわった平屋の間取り事例を紹介します。
間取り図や内装写真で、家事動線に関するアイデアや工夫を感じ取ってみてください。
各詳細ページには平屋全体の写真も掲載していますので、気になる事例があったら要チェックです。
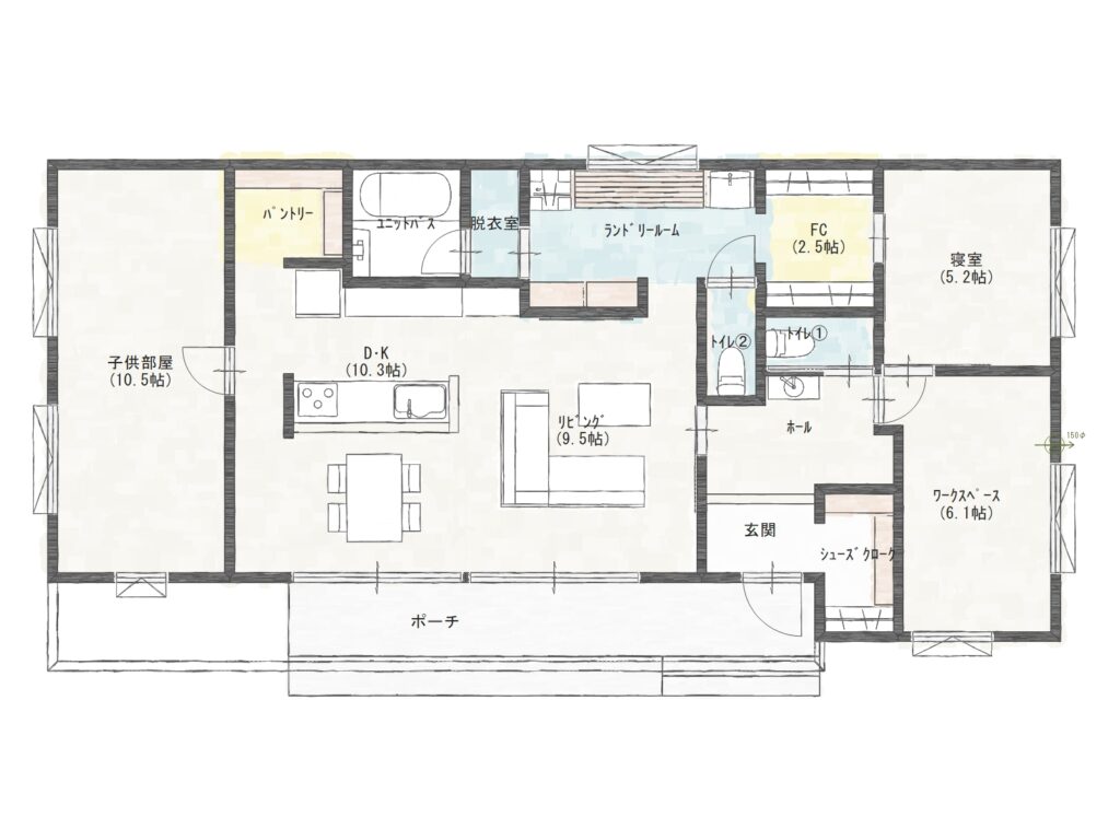
間取り事例① 洗濯動線をコンパクトにまとめる


▶【30坪/小美玉市/3LDK】深い軒と広いタイルデッキのある家
アイランド風のキッチンレイアウトによる回遊動線、ランドリールームとファミリークロークの配置など、効率良く家事をこなせる平屋の間取りです。

▶【30坪/小美玉市/3LDK】深い軒と広いタイルデッキのある家
ランドリールームの隣にファミリークロークを配置することで洗濯動線がコンパクトにまとまり、洗う・干す・畳む・しまうまでの一連の家事を1か所で完結できます。
間取り事例② 効率の良い回遊動線


40坪以上の広い平屋ですが、効率的な間取り設計でコンパクトで暮らしやすい家事動線をつくっています。

キッチンの横にパントリーをつくり、玄関ホールまで抜けられるウォークスルーの間取りにすることで効率の良い回遊動線を実現。
シーンに応じて最短ルートを選びやすくなり、家事動線の短縮につながります。
間取り事例③ LDK中心の家事動線


▶敷地を活かした開放感あふれるサーファーズハウス|行方市の平屋
廊下をなくし、LDKを回廊のように活用することで無駄のないスムーズな家事動線をつくった間取り事例です。

20.5帖の開放的なLDKは、水回りを1か所にまとめることで家事動線を短縮。
廊下を通らずにLDKから直接水回りにアクセスできるため、移動の負担を軽減できます。
間取り事例④ 大型ファミリークローク


ランドリールームの近くに大型のファミリークロークを配置し、家族全員の衣類を効率良く管理できるようにした間取り事例です。

3.75帖のファミリークロークは、ランドリールームから最短距離で衣類をしまえる便利な間取りに。
玄関ホールに隣接しているため、お出かけ前の身支度にも活用できます。
「A-1 home」はここでご紹介した以外にも多数の平屋施工事例を公開しています。
暮らしやすい家事動線の平屋に興味をお持ちの方は、ぜひお気軽にお問い合わせください。
平屋の家事動線を最適化する間取りの工夫

先ほどご紹介したような効率的な家事動線の平屋を建てるためには、さまざまな間取りの工夫を取り入れることが大切です。
日々の暮らしを想定して「横の動き」を短縮するための、代表的な4つの間取りの工夫をご紹介します。
キッチンを中心に水回りをまとめる
キッチンを平屋の中心に配置し、洗面やランドリーなど家事に関連する間取りを直線的に配置することで、料理と洗濯を同時進行しやすくなります。
家事動線がシンプルかつ短くまとまるため、複数の家事をこなしながらお子さまの様子を確認するなど子育てとの両立もしやすいです。
特に最近主流の一体型LDKの間取りでは、キッチンを起点に家事動線を設計することで効率良くまとめることができます。
関連コラム:家事動線がよくなる間取りの工夫|ランドリールームのある暮らしと実例紹介
回遊動線で行き止まりをなくす
廊下や部屋を行き止まりにせず、ぐるりと一周できる回遊動線をつくると、家事効率を向上させることができます。
回遊動線にすることで複数のルートで移動できるようになり、家事シーンに応じて最短距離を選びやすくなります。
行き止まりをなくすことで、掃除や片付けなどの際に引き返す動作が無くなるのも回遊動線のメリット。
平屋に取り入れるなら、アイランドキッチンなどコンパクトな回遊動線から検討してみるのがおすすめです。
また、パントリーやクローゼットなどの収納をウォークスルーの間取りにして、平屋全体の回遊動線をつくるのも人気のアイデア。
関連コラム:回遊動線で快適な家づくり|実際の間取り事例と失敗しないコツ、メリット・デメリットを解説
動線上に収納を配置する
家事や生活に関わる動線に沿って収納を配置することで、暮らしやすい平屋の間取りをつくることができます。
例えば、回遊動線の中にパントリーやクローゼットなどの収納を組み込めば、移動しながら物を出し入れできる間取りに。
また、洗濯動線上にランドリールームとファミリークローゼットを設けて、「洗う→干す→しまう」までをスムーズに完結させる間取りも人気です。
家族全員分の衣類をファミリークローゼットでまとめて管理することで、各部屋に配る手間がなくなり、家事時間を短縮できます。
収納の位置で片付けやすさが変わるため、家事動線を確認してバランス良く配置してみましょう。
関連コラム:収納の多い家の間取り実例|メリット・デメリットと後悔しない設計ポイントを解説
茨城で家事動線の良い平屋を建てるなら「A-1 home」へ
ここまでご紹介してきたように、家事動線の良い平屋を建てるためにはライフスタイルに合わせた間取りの工夫が必要です。
なるべく平屋づくりの実績が豊富な施工会社に相談して、いろいろな間取りアイデアを提案してもらいましょう。
茨城県で家事動線の良い平屋を建てるなら、私たち「A-1 home」にご相談ください。
これまで多くの平屋を手掛けた実績を活かし、お施主様のライフスタイルにマッチする暮らしやすい間取りプランをご提案いたします。
