
鹿嶋市にて、29坪・3LDKの平屋住宅 完成見学会を開催します。
収納力・家事動線・開放感。
暮らしやすさに欠かせない3つの要素をバランスよく取り入れたお住まいです。
限られた面積の中でも広がりを感じられる工夫や、
日々の生活を快適にする動線設計を、ぜひ現地でご体感ください。
お申込みはこちら
建物概要


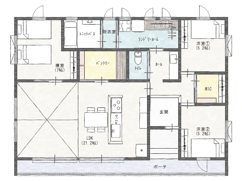
| 仕様 | 3LDK+WIC+パントリー+ランドリールーム |
| 延床面積 | 97.30㎡(29.43坪) |
| 外壁 | 窯業系サイディング |
| 天井・壁 | クロス |
| 床 | フローリング |
このお家の見どころ
■ 開放感あふれるLDK空間
・21帖の大空間LDKで家族がゆったり過ごせる設計
・勾配天井により、空間に広がりとメリハリを演出
・大開口サッシから自然光をたっぷり取り込み、明るく心地よい空間に
■ 多目的に使えるパントリー
・リビングに隣接した多目的パントリー
・カウンター付きで、収納だけでなく書斎や作業スペースとしても活用可能
■ 収納計画と使いやすさ
・ウォークインクローゼットで衣類や季節物をまとめて収納
・使いやすさを重視したオープン収納で取り出しやすく片付けもスムーズ
・生活感を抑えながら、すっきりとした住空間を実現
■ 家事ラク動線・水まわり
・洗面スペースとは別に独立した脱衣室を設置
・家族が同時に使いやすく、プライバシーにも配慮した動線
・横幅1600㎜の洗面台で、朝の身支度も快適
■ 快適性と安心の設備
・電動シャッター採用で、防犯性と利便性を向上
・明るさ・動線・設備のバランスが取れた住まい
こんな方におすすめです
・平屋でゆったり暮らしたい方
・収納力のある住まいを検討している方
・家事動線を重視したい方
・開放感のあるリビングに憧れている方
・実際の広さや使い勝手を体感したい方
開催概要
日時:2026年4月29日(水)~5月2日(土) 10:00~16:00
場所:茨城県鹿嶋市
◆ご見学にはご予約が必要です。ご予約確定メールをお送りいたしますので、3日以内にメールが届かない場合はお知らせください。
◆当日のお申込みではご期待に添えない場合がございますので、一度お問い合わせください。
◆ご見学後、個別相談も承ります。
ご予約について
本見学会は事前予約制です。
ゆっくりご見学いただけるよう、1組ずつご案内いたします。
▶ ご予約はこちらから
※ご予約後、詳細な住所をご案内いたします。
スタッフより
写真や図面だけでは分からない、
空間の広がりや動線の使いやすさを体感できる見学会です。
皆さまのご来場を心よりお待ちしております。
お問い合わせ先
(担当)あらい・たにぐち TEL:0120-890-321
過去の施工事例
個性豊かな一つだけのオリジナルプランがたくさんの施工事例もご覧ください。